Moderan stan od 82,57 m2 – novogradnja – Privlaka

Osnovne informacije

  • Cijena: 239.453,00 €
  • ID nekretnine: A-872
  • Kategorija: Apartman
  • Ažurirano: 23/03/2026
  • Vrsta: Prodaja
  • Spavaće sobe: 2
  • Broj katova: 2
  • Kvadratura: 82.57 m2
  • Udaljenost do mora: 600 m
  • Regija: Zadarska županija
  • Grad: Privlaka
  • Naselje: Sabunike

Agenti

Osnovna infrastruktura

  • Struja
  • Gradski vodovod
  • Septička jama

Etaža

  • prvi
  • drugi

Prostori vezani uz nekretninu

  • Terasa: 1
  • Dnevni boravak: 1
  • Hodnik: 2
  • Kuhinja: 1
  • Kupaona: 2
  • Spavaća soba: 2
  • Blagovaona: 1

Parking

  • Parkirna mjesta ukupno: 1
  • Nenatkriveno parkirno mjesto: 1

Opis nekretnine

  • Godina izgradnje: 2025
  • Broj etaža: jednoetažni
  • Udaljenost od plaže [m]: 600
  • Udaljenost od centra [m]: 800
  • Broj stambenih jedinica: 3

Opis Lokacije

  • Blizina mora
  • Blizina centra
  • Miran predio
  • Blizina dućana
  • Blizina plaže

Grijanje

  • Klima uređaj

Stanje

  • Novouređen

Podkategorija

  • Novogradnja

Opis

U prodaji 3 apartmana u novogradnji na području Sabunika s pogledom na more. Planirani završetak radova je prosinac 2025. godine.

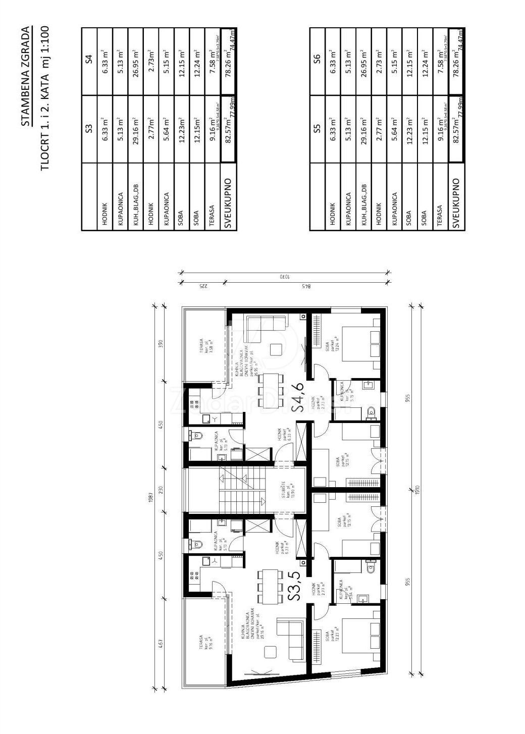
PRVI KAT
Na prvom katu se nalaze 2 dvosobna apartmana S3 i S4 identičnog rasporeda, ukupne stambene površine 82.57 m2 i 78.26 m2.
Sastoje se od 2 hodnika, dnevnog boravka s kuhinjom i blagovaonicom, 2 spavaće sobe, 2 kupaonice i terase.
Cijena apartmana S3 je 239.453,00 eura. Cijena apartmana S4 je 220.313,00 eura. Svakom apartmanu pripada jedno parkirno mjesto.

DRUGI KAT
Na drugom katu je smješten dvosobni apartman S6, ukupne stambene površine 78.26 m2.
Sastoji se od 2 hodnika, dnevnog boravka s kuhinjom i blagovaonicom, 2 spavaće sobe, 2 kupaonice i terase.
Cijena apartmana je 220.313,00 eura. Svakom apartmanu pripada jedno parkirno mjesto.

OPREMLJENOST APARTMANA:
– Keramičke pločice i sanitarije visoke kvalitete
– PVC stolarija s elektroroletama i komarnicima
– Protupožarna i protuprovalna ulazna vrata
– Podno grijanje (u kupaonicama i dnevnom boravku)
– Invert klima uređaj (više unutarnjih jedinica)

Privlaka je malo ribarsko i turističko mjesto koje se smjestilo na prostranom pješčanom poluotoku u blizini
Zadra i kraljevskog grada Nina. Čisto i bistro more te plitke pješčane uvale čine ju kao stvorenom za
obiteljski turizam.

Info o nekretnini

Sve informacije o nekretnini možete dobiti popunjavajući okvir ispod Vašim podacima i tekstom upita

  • This field is for validation purposes and should be left unchanged.
Pregled privatnosti

Ova web stranica koristi kolačiće tako da vam možemo pružiti najbolje moguće korisničko iskustvo. Podaci o kolačićima pohranjuju se u vašem pregledniku i obavljaju funkcije poput prepoznavanja kod povratka na našu web stranicu i pomaže našem timu da shvati koji su dijelovi web stranice vama najzanimljiviji i najkorisniji.